January - December 2021

Design, Launch and Operation Management

I co-led the design, launch, and operation of a network of 24 micro-fulfillment centers across Poland, Kenya, Morocco, and Georgia. The system grew from concept to a fully operational network of more than 300 people, enabling 15-minute grocery delivery for millions of urban customers.

Problem:

In 2021, Glovo faced intense competition in the emerging quick-commerce space. To capture market share and deliver on our promise of “anything on-demand within 15 minutes,” we reimagined the entire fulfillment model.

Solution:

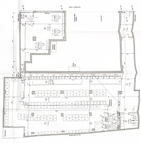
We shifted from traditional supermarkets to purpose-built dark stores — urban micro-fulfillment centers optimized for speed and precision.

Our design process combined:

-Ethnographic research:Shadowing pickers and delivery riders to identify bottlenecks in existing workflows

-Spatial design:Creating custom store layouts for each location that optimized picker pathways, product placement by velocity, and handoff zones to minimize rider wait times during peak hours

-Systems thinking:Designing integrated operational protocols spanning supply chain, inventory management, staffing models, and delivery radius planning based on rider density and urban geography

-Iterative testing:Launching pilots in each market, measuring KPIs (pick time, order accuracy, delivery speed), and refining designs based on performance data

-Challenges & outcome:

In 2021 design, we scaled from 0 to 24 stores across 10 cities in 4 countries
-Poland: 6 cities, 18 stores
-Morocco: 3 cities, 3 stores
-Georgia: 1 city, 2 stores
-Kenya: 1 city, 1 store

Each market required adapting the core design to local contexts—from product catalogs reflecting local preferences to delivery strategies accounting for infrastructure differences.

Glovo express store in Casablanca